吉田ガレージの区画一覧の月極駐車場 | Park Direct(パークダイレクト)

吉田ガレージ

兵庫県神戸市東灘区鴨子ケ原3丁目41番1(地番)

月額

---

(税込/管理料含む)

吉田ガレージの外観・駐車場イメージ1枚目
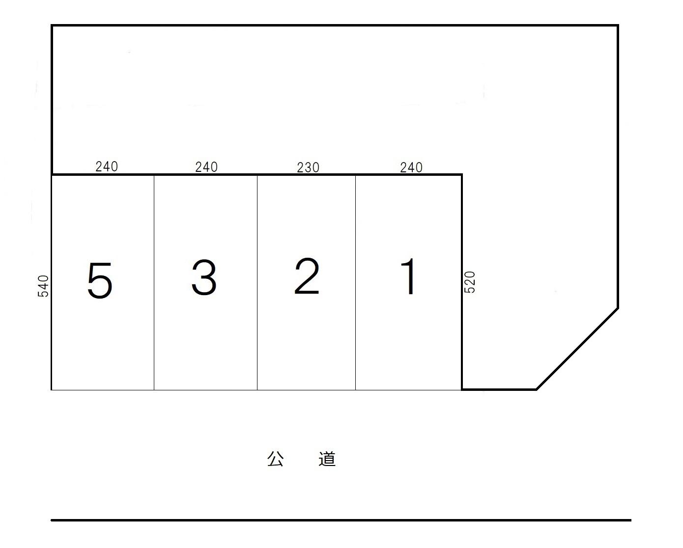
吉田ガレージの駐車配置図
 

区画一覧

申し込み可能な区画がありません

駐車場情報

取扱い店舗拠点コード
10
Park Direct管理コード
PK000033742
情報更新日
---

駐車場の特徴

吉田ガレージ(Park Direct管理コード:PK000033742)は兵庫県神戸市東灘区鴨子ケ原3丁目41番1(地番)にあるの月極駐車場です。 屋根付きで舗装された駐車スペースを提供しており、料金はお申込み後にご確認いただけます。 この駐車スペースは24時間利用可能で、対応車両例としてサイズまで対応しています。 この駐車場をご利用いただく際は事前に貸与物等のお渡しが必要なためご留意ください。

近くの月極駐車場

駐車場
兵庫県神戸市東灘区住吉山手5丁目1871番1(地番)

ヒルサイド駐車場

問い合わせ拠点から直線距離で559m

周辺のエリアから探す

周辺の駅から探す

JR神戸線

阪急神戸本線

六甲ライナー

JR神戸線

阪急神戸本線

阪神本線

六甲ライナー

所在地について

当サイトの駐車場の所在地は、「住所」または「地番」で表記されています。

住所: 建物の場所を示すためのものです。
地番: 建物ではなく、土地の区画を管理するための番号です。

地番で地図検索をすると、地図アプリが土地全体の代表点を示すことがあるため、実際の駐車場の場所と異なる位置が表示される場合があります。

ご契約の前に現地等で駐車場の正確な場所をご確認ください