黒松_G地区の区画一覧の月極駐車場 | Park Direct(パークダイレクト)

黒松_G地区

宮城県仙台市泉区黒松三丁目2

月額

11,987

(税込/管理料含む)

  • 平置き
  • 舗装
  • 24h
  • 大型車・SUV
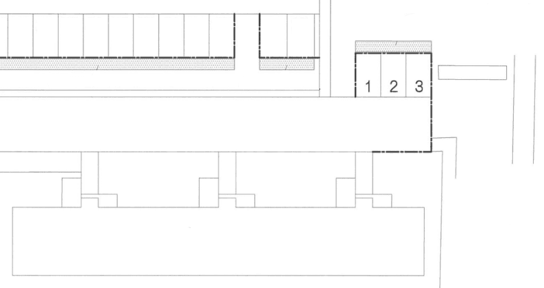
黒松_G地区の駐車配置図
黒松_G地区の駐車配置図
 

区画一覧

下記の一覧からご希望の区画を選択し、空き状況の確認(または空き待ち予約)にお進みください。

  • 対応車両の定義をご確認の上、ご自身の車両が駐車可能か、必要に応じて現地にてご確認をお願いいたします。
    (車種によって隣の区画との車幅注意のため、サイズに余裕のある区画を選択することをおすすめしております)
  • 審査を通過し、ご契約後の場合でも、適合しない車両であった場合にはご契約を解除させていただく場合がございます。
    なお、お客様から契約を解約する場合には、賃貸借契約所定の手続に従う必要があります。
  • 車両サイズ等の不適合を理由に契約が解除・解約される場合、支払済みの金銭について返金はされませんのでご留意ください。

合計1区画(3台)

空き状況
特徴
月額使用料
初期費用

空き待ち可

  • 種別

    平置き

  • 屋根

    なし

  • 舗装

    あり

  • 24時間

    利用可能

  • 貸与物

    なし

11,987

(税込)

管理費用等含む

11,100

(税込)

管理費用等含む

対応車両例
サイズ
台数

大型車・SUV

長さ 4.8m〜5.0m/車幅 1.8m〜1.9m

クラウン、レガシィ、アルファード、ヴェルファイア、エスティマ、スカイライン、オデッセイ、ハリアー、エクストレイル、CX-5、フォレスター、パジェロ、アウトランダーなど

  • 高さ

    不明

  • 長さ

    不明

  • 車幅

    不明

  • 車下

    不明

  • タイヤ幅

    不明

  • 重さ

    不明

3
その他費用
契約情報

保管場所使用承諾証明書発行手数料

※1

3,300円(税込)

更新費用

※2

887円(税込)

※1 証明書発行をご希望の方のみ必要な費用となります。

※2 契約更新時に都度発生します。

契約期間

1年更新

インボイス制度への対応

賃貸人が適格請求書発行事業者登録済みの駐車場

契約条件/駐車場利用に関する備考
◆本駐車場は契約前に現地確認を必須とします。

空き待ち可

対応車両例
大型車・SUV
長さ 4.8m〜5.0m/車幅 1.8m〜1.9m
月額使用料
11,987(税込)管理費等含む
初期費用
11,100(税込)管理費等含む
特徴
  • 種別

    平置き

  • 屋根

    なし

  • 舗装

    あり

  • 24時間

    利用可能

  • 貸与物

    なし

初期費用 合計

11,100円(税込)

契約時にお支払いいただく月額使用料以外の小計金額です。

内訳

①敷金

0

月極駐車場貸借の際、借主が貸主に対して駐車場使用料の滞納や損害賠償の担保として預けておく費用。

借主に未払い債務がない限り契約終了の際に返還される。

②礼金

0

駐車場貸借の際、借主が貸主に対してお礼という名目で家主に払う費用。

敷金と違い、契約終了の際に返還されない。

③事務手数料

0

契約締結時に、貸主または管理会社に支払う手数料。

④初回保証/管理料

11,100

保証会社との契約継続のための費用及び駐車場の管理、運営をするために必要な費用。

敷金と違い、契約終了の際に返還されない。

月額使用料 合計

11,987円(税込)

月額使用料は、駐車場利用にともなう①月額賃料、②月額保証/管理料が含まれます。利用開始月は、日割り精算でのご請求となります。

内訳

①月額賃料

11,100

駐車場の月々の使用料。

②月額保証/管理料

887

保証会社との契約継続のための費用及び駐車場の管理、運営をするために必要な費用。

地図

 

駐車場情報

取扱い店舗拠点コード
NL-0032
Park Direct管理コード
PK000144754
情報更新日
2025/10/31

駐車場の特徴

黒松_G地区(Park Direct管理コード:PK000144754)は宮城県仙台市泉区黒松三丁目2にある平置きの月極駐車場です。 屋根なしで舗装された駐車スペースを提供しており、料金は11,987円です。 この駐車スペースは24時間利用可能で、対応車両例として大型車・SUVサイズまで対応しています。 この駐車場をご利用いただく際は貸与物等もありませんので、契約後すぐにご利用いただけます。

近くの月極駐車場

駐車場
宮城県仙台市泉区黒松三丁目2

黒松_O地区

問い合わせ拠点から直線距離で13m
駐車場
宮城県仙台市泉区黒松三丁目2

黒松_F地区

問い合わせ拠点から直線距離で45m
駐車場
宮城県仙台市泉区黒松三丁目2

黒松_N地区

問い合わせ拠点から直線距離で60m

周辺のランドマークから探す

周辺の駅から探す

仙台市営地下鉄南北線

所在地について

当サイトの駐車場の所在地は、「住所」または「地番」で表記されています。

住所: 建物の場所を示すためのものです。
地番: 建物ではなく、土地の区画を管理するための番号です。

地番で地図検索をすると、地図アプリが土地全体の代表点を示すことがあるため、実際の駐車場の場所と異なる位置が表示される場合があります。

ご契約の前に現地等で駐車場の正確な場所をご確認ください

1日貸し駐車場検索・予約サービス「ワンデイパーク」のご案内

ビジネスやレジャーなど、お出かけ先での駐車場にお困りではありませんか?

1日〜数日の短期間利用できる駐車場をお探しなら、Park Directの関連サービス「ワンデイパーク」をご利用ください。

全国の1日貸し駐車場を2週間先まで予約できます(エリア拡大中)。

ワンデイパークで駐車場をさがす